产品中心
|
华为TP48600B-N16C1 室内电源
产品说明
华为TP48600B-N16C1 室内电源 图 2-1 TP48600B-N16C1 的机柜外观
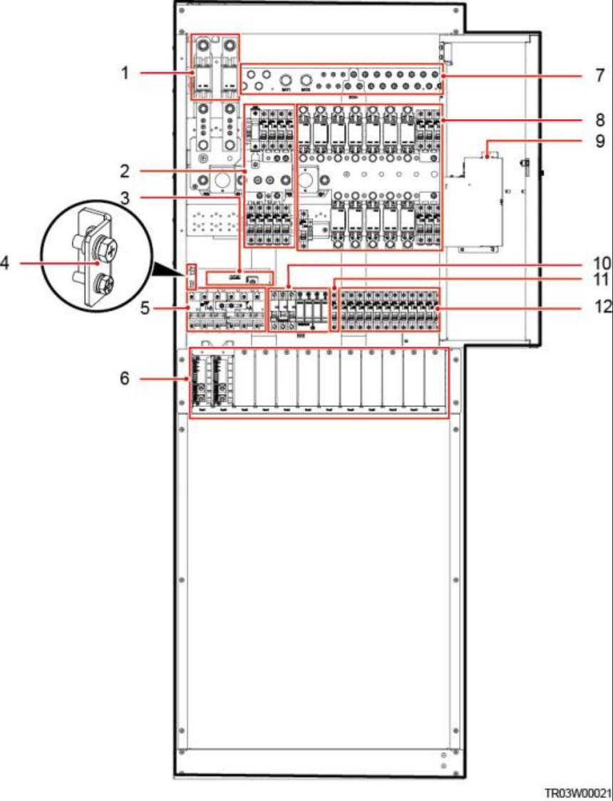
图 3-1 内部结构(01072531-045)
( 1 )电池熔丝 (2)重要负载下电支路空开 (3)N接线排 (4)机柜接地排 (5)交流输入空开 (6)整流模块安装空间 ( 7 )RTN+母排 (8)次要负载下电支路空开和熔丝 (9)监控单元SMU06T2
( 10)防雷器空开和防雷器 ( 11 )交流输出空开 ( 12)整流模块空开
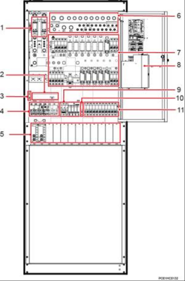
图 3-2 内部结构(01072531-048)
( 1 )电池熔丝 (2)N接线排 (3)机柜接地排 (4)交流输入空开 (5)整流模块安装空间 (6)RTN+母排 ( 7 )重要负载下电支路空开和 (8)监控单元SMU06T2 (9)防雷器空开和防雷器 熔丝 ( 10)交流输出空开 ( 11 )整流模块空开 |


