基站通信电源机柜

北京友谊世纪进出口贸易有限公司

17358751718

产品中心

详细说明

华为TP48300B-N16A5 通信电源

暂无价格
产品说明

华为TP48300B-N16A5 通信电源

2-1  TP48300B-N16A5 的机柜外观

 


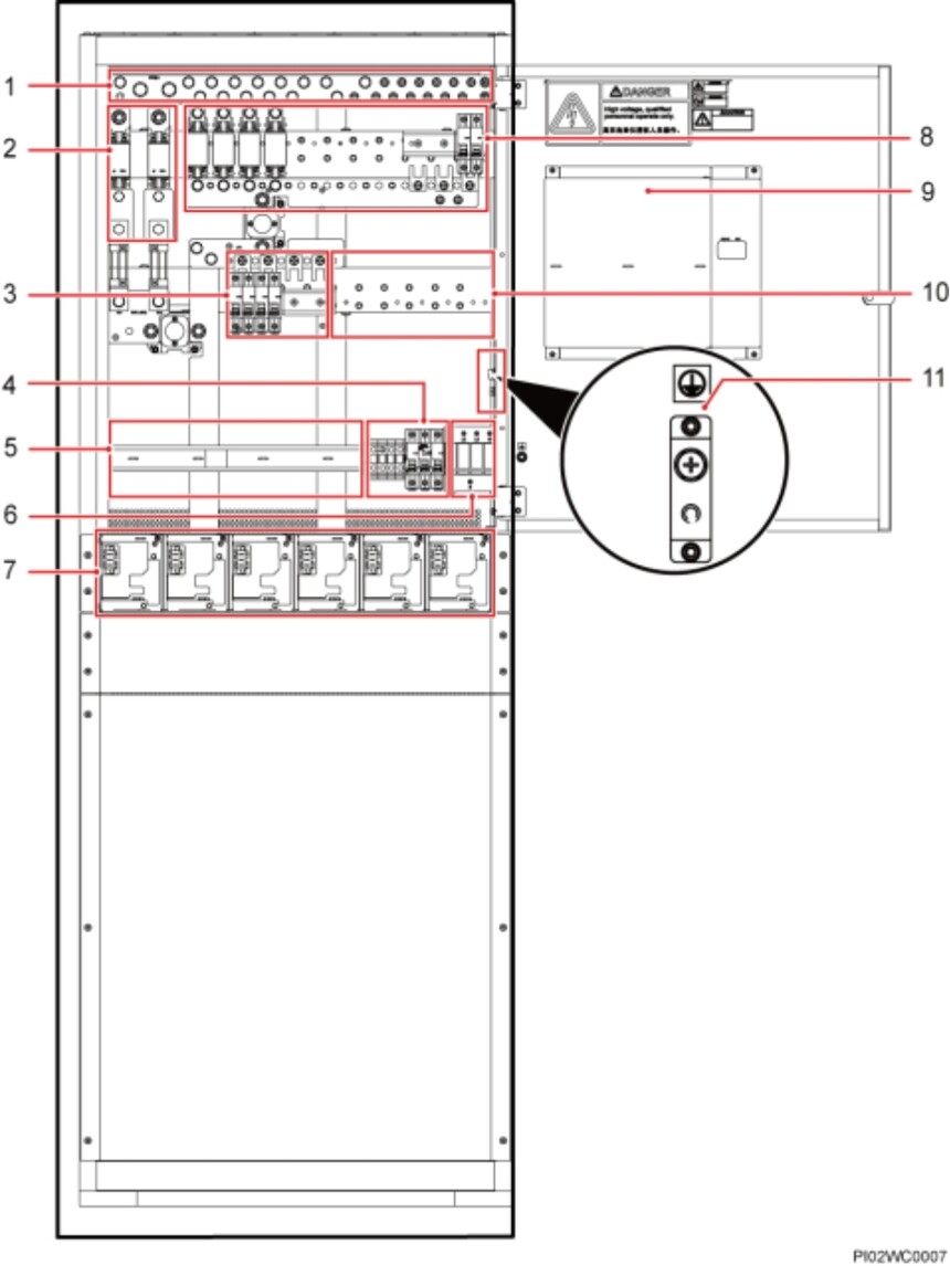
3-1  TP48300B-N16A5 内部结构

 

 

1RTN+母排

2)电池熔丝

3)重要负载下电支路 BLVD)配电空间

4)交流输入空 

5)整流模块空开或交流输出 空开预留空间

6)交流防雷器

7)整流模块安 装空间

8)次要负载下电支路

LLVD)配电空间

9)监控单元

10)直流配电预 留空间

11)接地排


 



Copyright @ 2019 . All rights reserved.   备案号

联系方式

24小时联系热线:17358751718

  • 电话直呼

    • 17358751718
    • 13141468178
    • 17332612567
    • 销售前 :
    • 销售后 :
  • 基站通信室内外电源机柜

×
seo seo