产品中心
|
华为TP48300B-L04C1 通信电源
产品说明
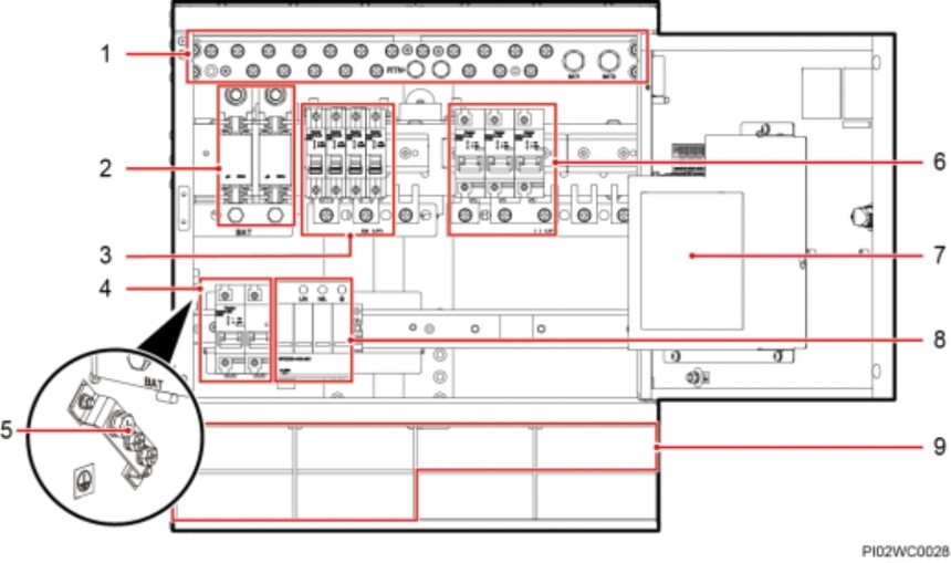
华为TP48300B-L04C1 通信电源 图2-1 机柜外观图
(1)RTN+母排 (2)电池熔丝 (3)BLVD 空开 (4)交流输入空开 (5)接地排 (6)LLVD 空开 (7)监控单元 (8)交流防雷器(SPD) (9)整流模块安装空间
|

