产品中心
|
华为TP48400B-L20B1 通信 电源
产品说明
华为TP48400B-L20B1 通信 电源 图2-1 机柜外观图
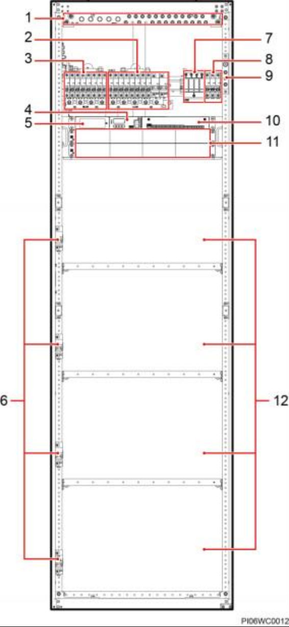
图3-5 TP48400B-L20B1 内部结构
(1)RTN+母排 (2)次要负载下电支路
(3)重要负载下电支路 (BLVD)
源
(4)监控模块 (5)电池强制上电开关(盖板 (6)电池空开 SMU02B 后) (7)交流防雷器 (8)交流输入空开 (9)机柜接地排 (10)用户接口模块 (11)整流模块或太阳能模块 (12)电池安装空间 UIM02C 安装空间
|

