产品中心
|
华为MTS9300A 通信电源
产品说明
华为MTS9300A 通信电源 图 2-3 外观
表 2-2 机柜指标
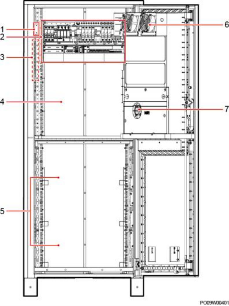
图 2-4 MTS9302A-HD16A1-3960-001 内部结构
( 1 )门磁传感器 (2)电源插框 (3)机柜接地排 (4)用户设备安装空间 (5)锂电池安装空间 (6)内循环风扇 ( 7 )外循环风扇 |

