产品中心
| 
 | 
| 华为TP48200A-HX09A3 通信电源
    产品说明
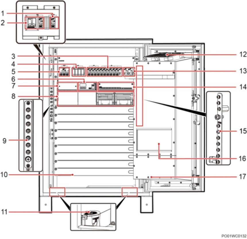
         华为TP48200A-HX09A3 通信电源 图2-1 TP48200A-HX09A3 和 TP48200A-HX09A4 机柜外观 
 
 
 (1)交流输出空开和端子 (2)万能插座和保护开关 (3)直流输出空开 (4)交流防雷器 (5)交流输入空开 (6)监控模块 (7)电池强制上电开关 (8)整流模块安装空间 (9)接地排 (在盖板后面) (10)用户设备安装空间 (11)走线袋 (12)内循环风扇 (13)电池空开 (14)用户接口模块 (15)RTN+母排 
 | 
 



 
                             
                             
                             
                             
                             
                             
                             
                             
                             
                             
                         
                                            