产品中心
| 
 | 
| 华为TP48200A-HT19C4 通信电源
    产品说明
         华为TP48200A-HT19C4 通信电源 图2-1 机柜外观图 
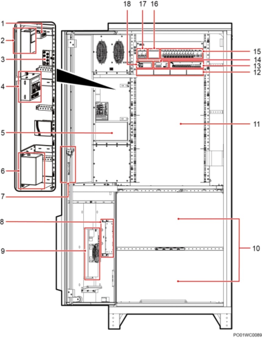
 图3-2 TP48200A-HT19C4 内部结构 
 (1)电流互感器(选配) (2)智能电表(选配) (3)机柜接地排 (4)维护插座(选配) (5)HXC150S 热交换器 (6)蓝牙控制器(选配) (7)电子门锁(选配) (8)TCUA 控制盒 (9)TEC 模块 (10)电池安装空间 (11)用户设备安装空间 (12)整流模块安装空间 (13)用户接口模块 (14)监控模块 (15)直流配电单元 
 | 
 



 
                             
                             
                             
                             
                             
                             
                             
                             
                             
                             
                         
                                            