产品中心
| 
 | 
| 华为TP48200A-HT19C1 通信电源
    产品说明
         华为TP48200A-HT19C1 通信电源 图2-1 机柜外观图 
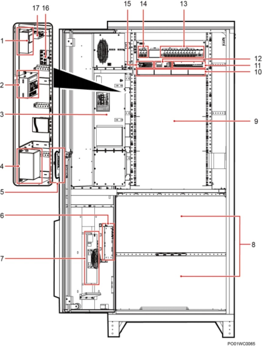
 图3-3 TP48200A-HT19C1 内部结构 
 (1)智能电表(选配) (2)维护插座(选配) (3)HXC70S 热交换器 (4)蓝牙控制器(选配) (5)电子门锁(选配) (6)TCUA 控制盒 (7)TEC 模块 (8)电池安装空间 (9)用户设备安装空间 (10)整流模块安装空间 (11)用户接口模块 (12)监控模块 (13)直流配电单元 (14)交流输入空开 (15)电池强制上电开关 
 | 
 



 
                             
                             
                             
                             
                             
                             
                             
                             
                             
                             
                         
                                            