产品中心
| 
 | 
| 华为TP48200A-DT19C1 通信电源
    产品说明
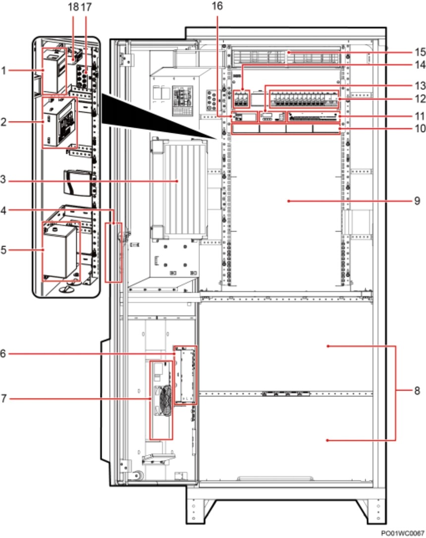
         华为TP48200A-DT19C1 通信电源 图2-1 机柜外观图 
 
 
 (1)智能电表(选配) (2)维护插座(选配) (3)防尘网 (4)电子门锁(选配) (5)蓝牙控制器(选配) (6)TCUA 控制盒 (7)TEC 模块 (8)电池安装空间 (9)用户设备安装空间 (10)整流模块安装空间 (11)用户接口模块 (12)直流配电单元 (13)监控模块 (14)交流输入空开 (15)风机盒 
 | 
 



 
                             
                             
                             
                             
                             
                             
                             
                             
                             
                             
                         
                                            