华为PowerCube 1000 ICC710-HA1-C5 室外机柜
图3-25  ICC710-HA1-C5 的外观

 
 
 
 内部结构
内部结构
 
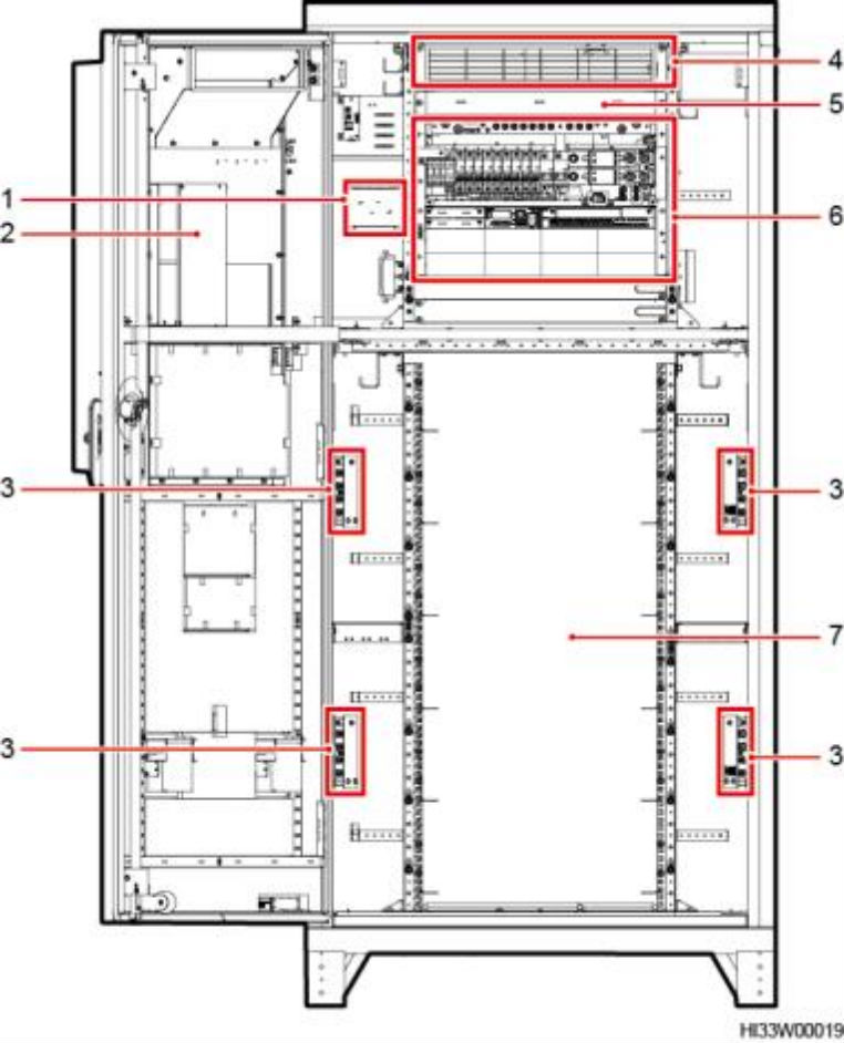
图3-26  ICC710-HA1-C5 的内部结构(正面)
 
 
(1)温控供电转接盒         (2)热交换         (3)电池铜排
(4)风机盒                 (5)走线面板       (6)DCDU-400AN2
 (7)电池安装空间
(7)电池安装空间
 
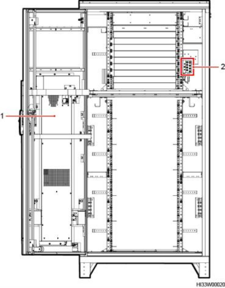
 图3-27  ICC710-HA1-C5 的内部结构(背面)
图3-27  ICC710-HA1-C5 的内部结构(背面)
 
 
(1)直流空调                           (2)接地排
 
 
技术指标
 
表3-15  ICC710-HA1-C5 的技术指标
 
| 项目 | 说明 | 
| 室外机柜 | 温控: l 设备舱:热交换,换热能力 150W/K l 电池舱:直流空调,1100W 制冷量 外形尺寸(高×宽×深):1925mm×900mm×950mm 底座尺寸(高×宽×深):150mm×900mm×950mm   重量:300kg 安装方式:落地安装 维护方式:前维护 | 
 
 
 
 
 
| 项目 | 说明 | 
| 
 | 走线方式:下进下出 | 
| 电池安装空间 | ESM-4850A1(最大 600Ah) | 
| 用户设备安装空 间 | 14U | 
| 用户空间支持热 耗 | 300W~350W | 
| 工作温度 | 0℃~+45℃(包含太阳辐射) | 
| 运输温度 | -40℃~+70℃ | 
| 存储温度 | -40℃~+70℃ | 
| 工作湿度 | 5%RH~95%RH(无凝露) | 
| 海拔要求 | 0m~4000m (在 2000m~4000m 环境下高温降额,每升高 200m,工作温度降低 1℃) | 
| 噪声等级 | 满足 GR487 要求,噪声声压≤65dB@1.5m(环温 45℃时) | 
| 防护等级和工作 环境 | IP55 ,C 类环境 | 
| 其他要求 | l 没有导电尘埃和腐蚀性气体、没有爆炸危险 l 灰尘度、腐蚀性物质、有害生物、霉菌等指标应符合 ETSI EN 300 019-1-4(V2.2.1)Class 4.1 要求 | 
