产品中心
| 
 | 
| 华为PowerCube 1000 ICC330-HA1-C4C4 室外机柜
    产品说明
         华为PowerCube 1000 ICC330-HA1-C4C4 室外机柜 图3-8 ICC330-HA1-C4 的外观 
 
 
 
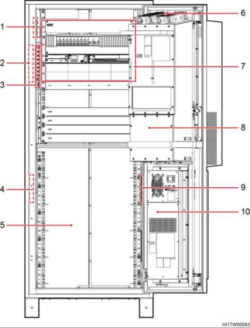
 图3-9 ICC330-HA1-C4 的内部结构 
 (1)温控供电转接盒 (2)ACDU (3)接地排 (4)RTN+母排 (5)电池安装空间 (6)热交换内循环风扇 (7)DCDU-400AN2 (8)热交换外循环风扇 (9) -48V 母排 
 
 
 
 表3-6 ICC330-HA1-C4 的技术指标 
 
 
 | 
 



 
                             
                             
                             
                             
                             
                             
                             
                             
                             
                             
                         
                                            