产品中心
| 
 | 
| 华为MTS9000A 通信电源 MTS9510A-AX2007
    产品说明
         华为MTS9000A 通信电源 MTS9510A-AX2007 图 2-3 外观 
 
 表 2-2 机柜说明 
 
 
 
 
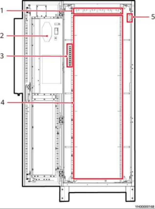
 C口 说明 ● B类环境:指不受控环境,即温湿度不受控的房间内或一般的室外环境,包括只有简单遮 蔽,如遮阳棚,湿度偶然会达到100%的情况。 ● C类环境:指海洋上环境,或者污染源附近的陆地室外和只有简单遮蔽的环境。污染源附近 是指距离盐水(如海洋、盐水湖)3.7公里,距离冶炼厂、煤矿、热电厂等重污染源3公里, 距离化工、橡胶、电镀等中等污染源2公里,距离食品、皮革、采暖锅炉等轻污染源1公里。 ● D 类环境:指距离海洋500米内的环境。 图 2-4 内部结构 
 ( 1 )走线架 (2)空调PC3000D-2 (3)接地排 (4)用户设备安装空间 (5)门磁传感器 | 
 


 
                             
                             
                             
                             
                             
                             
                             
                             
                             
                             
                         
                                            