产品中心
| 
 | 
| 华为iSitePower-A ESC330-D9 室外机柜
    产品说明
         华为iSitePower-A ESC330-D9 室外机柜 图 4-8 ESC330-D9 外观 
 
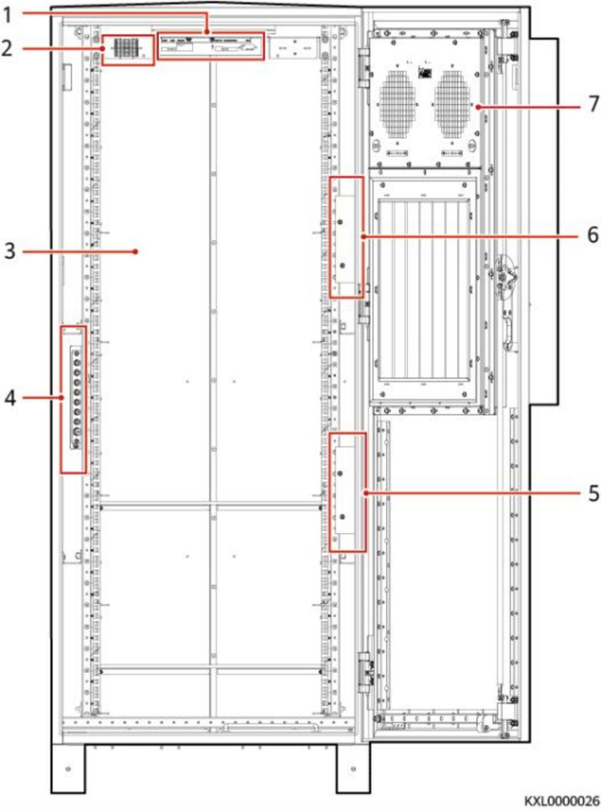
 图 4-9 ESC330-D9 内部结构 
 ( 1 )TCUE控制盒 (2)温控设备电源转接端子 (3)电池安装空间 (4)接地排 (5)-48V母排 (6)RTN+母排 ( 7 )直通风 | 
 


 
                             
                             
                             
                             
                             
                             
                             
                             
                             
                             
                         
                                            