产品中心
|
华为TP482000B V300R002C03 通信电源 TP481200B-N20B2
产品说明
华为TP482000B V300R002C03 通信电源 TP481200B-N20B2
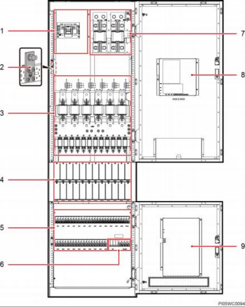
表4-4 TP481200B-N20B2 的配置
|
