产品中心
| 
 | 
| 华为TP48600B-N16C2 通信电源
    产品说明
         华为TP48600B-N16C2 通信电源 图2-1 TP48600B-N16C2 的机柜外观 
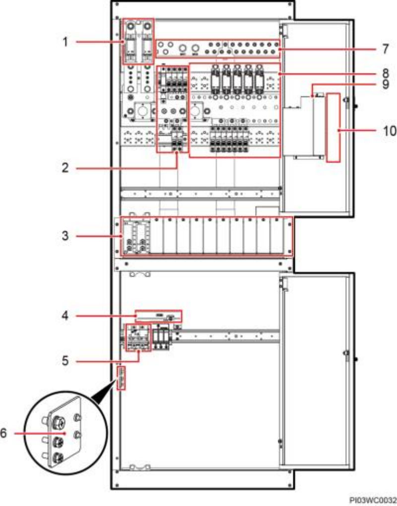
 图3-1 内部结构 
 
 
 
 (4)N 接线排 (5)交流输入空开 (6)机柜接地排 (7)RTN+母排 (8)次要负载下电支路空开或熔 (9)监控单元 丝 SMU06C (10)SNMP 模块安装空 间 
 | 
 



 
                             
                             
                             
                             
                             
                             
                             
                             
                             
                             
                         
                                            