产品中心
| 
 | 
| 华为TP48400B-N20D2 通信电源
    产品说明
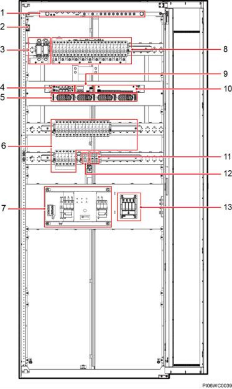
         华为TP48400B-N20D2 通信电源 图2-1 机柜外观 
 
 
 
 
 (1)RTN+母排 (2)电池强制上电开关 (3)电池熔丝 (4)通信扩展模块安装空 (5)整流模块 (6)交流输出空开 间 (7)交流切换开关 ATS (8)直流输出空开 (9)监控单元 (10)用户接口模块 (11)交流输出 N 接线端 (12)交流输入 N 接线端 子 子 
 | 
 



 
                             
                             
                             
                             
                             
                             
                             
                             
                             
                             
                         
                                            