产品中心
|
华为TP481000B- N20B1 通信电源
产品说明
华为TP481000B- N20B1 通信电源 图2-1 机柜外观
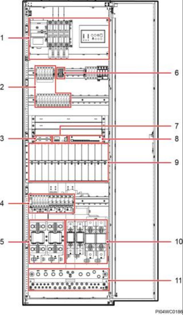
图3-3 TP481000B-N20B1 内部结构
(1)交流切换开关 ATS (2)交流输出空开 (3)通信扩展模块安装空间 (4)直流输出空开 (5)电池熔丝 (6)交流输出 N 端子 (7)监控单元 (8)用户接口模块 (9)整流模块安装空间
|

