产品中心
| 
 | 
| 华为 TP48600B-N20A3 通信电源
    产品说明
         华为 TP48600B-N20A3 通信电源 图2-1 机柜外观 
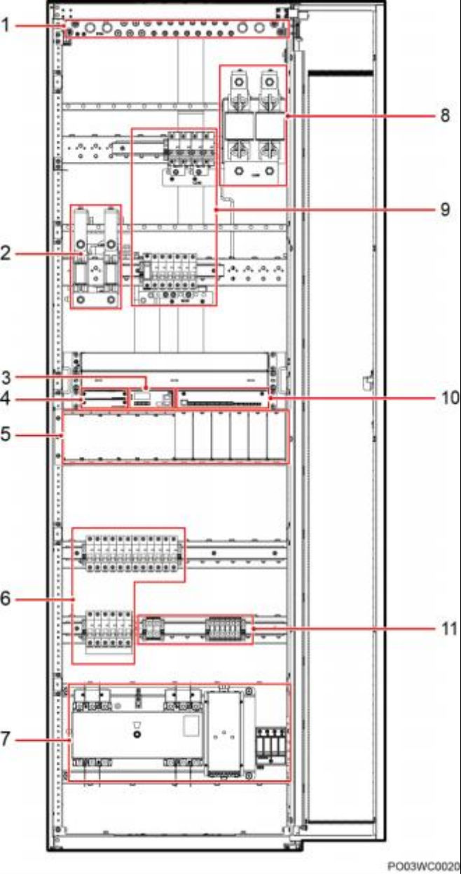
 图3-2 TP48600B-N20A3 内部结构 
 (1)RTN+母排 (2)电池熔丝 (3)监控单元 
 
 
 (7)交流切换开关 ATS (8)负载熔丝 (9)直流输出空开 (10)用户接口模块 (11)交流 N 端子 | 
 



 
                             
                             
                             
                             
                             
                             
                             
                             
                             
                             
                         
                                            