基站通信电源机柜

北京友谊世纪进出口贸易有限公司

17358751718

产品中心

详细说明

华为TP24600B-N16B1 通信电源

暂无价格
产品说明

华为TP24600B-N16B1 通信电源

2-1  机柜外观

 


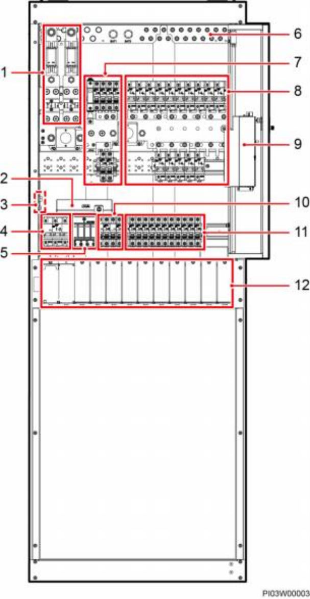
3-1  内部结构


 

 

1)电池熔丝             2N 接线排             3)机柜接地排

4)交流输入空开         5)交流防雷器           6RTN-母排

7)重要负载下电支路空开 8)次要负载下电支路空开 9)监控单元 SMU06D

10)交流输出空开        11整流模块空开        12)整流模块安装空间

 

 


Copyright @ 2019 . All rights reserved.   备案号

联系方式

24小时联系热线:17358751718

  • 电话直呼

    • 17358751718
    • 13141468178
    • 17332612567
    • 销售前 :
    • 销售后 :
  • 基站通信室内外电源机柜

×
seo seo