产品中心
|
华为ETP48400-C4B3 嵌入式电源
产品说明
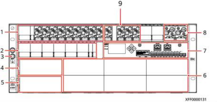
华为ETP48400-C4B3 嵌入式电源 图 2-2 ETP48400-C4B3 内部结构图(正视图)
( 1 )LLVD (2)直流输出支路(下层预 (3)接地螺丝 留) (4)整流模块/太阳能模块安装 (5)交流输入模块安装位置 (6)整流模块/太阳能模块安装 位置 位置 ( 7 )监控模块SMU06T2 (8)电池空开 (9)BLVD
图 2-3 ETP48400-C4B3 内部结构图(后俯视图)
( 1 )-48V(用于扩展配电) (2)RTN+(用于扩展配电)
产品配置 表 2-2 ETP48400-C4B3 配置
|
||||||||||||||||||||

