产品中心
|
华为TP48200A-HD15D6 通信电源
产品说明
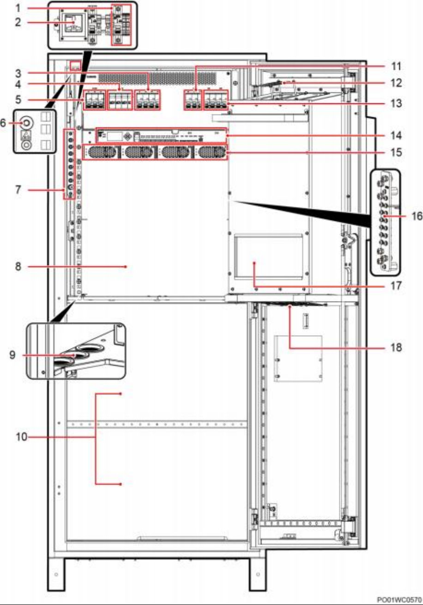
华为TP48200A-HD15D6 通信电源 图2-1 机柜外观
(1)交流输出空开及端子 (2)维护插座 (3)次要负载支路空开 (4)交流防雷器 (5)交流输入空开 (6)静电接地点 (7)接地排 (8)用户设备安装空间 (9)走线孔 (10)电池安装空间 (11)重要负载支路空开 (12)内循环风扇 (13)电池空开 (14)监控单元 (15)整流模块安装空间
|

