产品中心
|
华为PowerCube 1000 ICC330-HD1-C1 室外机柜
产品说明
华为PowerCube 1000 ICC330-HD1-C1 室外机柜 图3-21 ICC330-HD1-C1 的外观
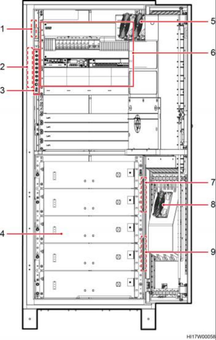
图3-22 ICC330-HD1-C1 的内部结构
(1)温控供电转接盒 (2)侧壁交流防雷 (3)接地排 (4)电池安装空间 (5)热交换风扇 (6)DCDU-400AN2 (7)RTN+铜排 (8)直通风风扇 (9)-48V 铜排
技术指标
表3-13 ICC330-HD1-C1 的技术指标
|

