产品中心
|
华为TP48600T-N20A5 通信电源
产品说明
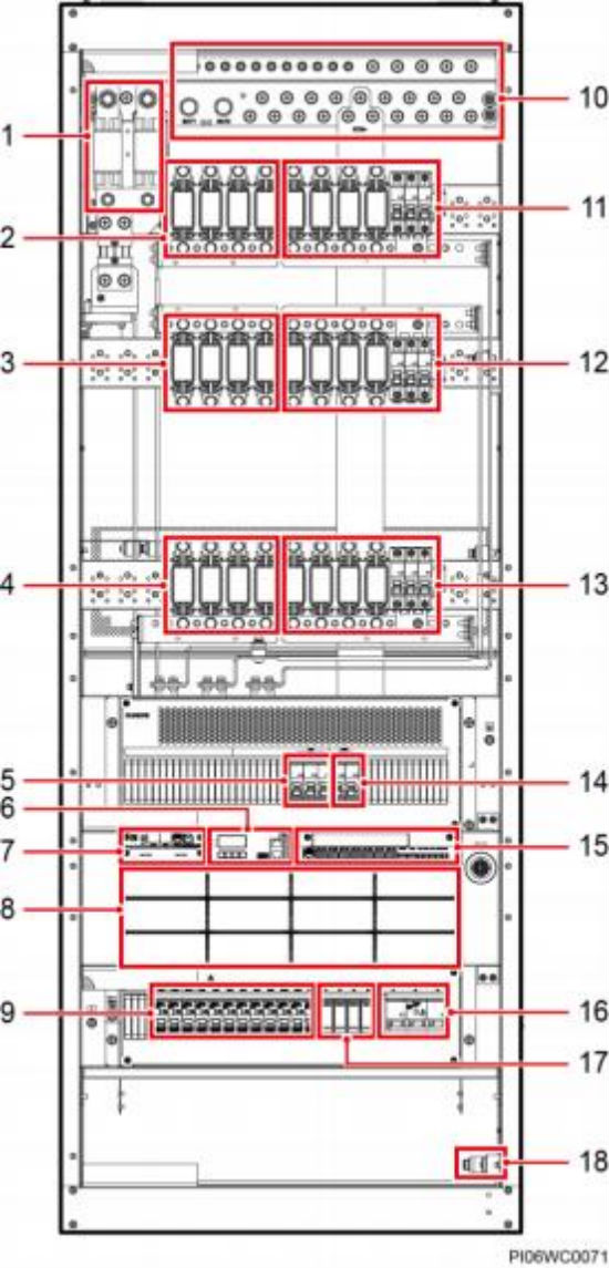
华为TP48600T-N20A5 通信电源 图2-1 TP48600T-N20A5 的机柜外观
(1)电池熔丝 (2)用户 3 的重要负载支路 (BLVD)熔丝
(3)用户 2 的 BLVD 熔丝
(10)RTN+母排 (11)用户 3 的次要负载支路 (12)用户 2 的 LLVD (LLVD)熔丝和空开 熔丝和空开 (13)用户 1 的 LLVD (14)用户 4 的 BLVD 空开 (15)UIM02C 熔丝和空开
|

