产品中心
|
华为TP48600B-N20A3 通信电源
产品说明
华为TP48600B-N20A3 通信电源 图2-1 机柜外观
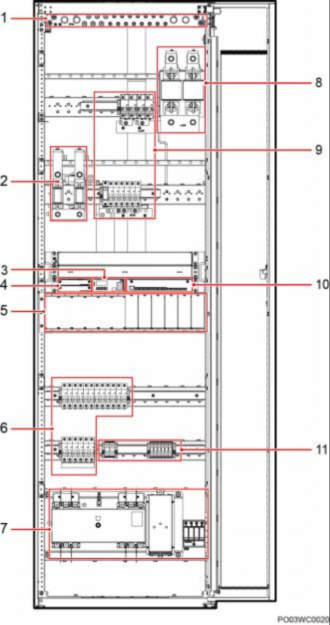
图3-2 TP48600B-N20A3 内部结构
(1)RTN+母排 (2)电池熔丝 (3)监控单元
(7)交流切换开关 ATS (8)负载熔丝 (9)直流输出空开 (10)用户接口模块 (11)交流 N 端子 |

