产品中心
|
华为TP48300B-N04C1通信电源
产品说明
华为TP48300B-N04C1通信电源 图2-1 机柜外观图
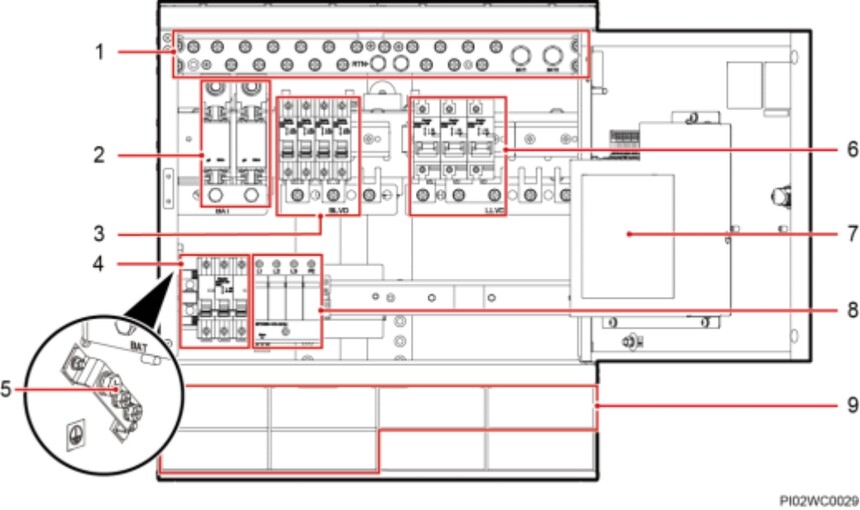
图3-1 TP48300B-N04C1 内部结构
(1)RTN+母排 (2)电池熔丝 (3)BLVD 空开 (4)交流输入空开及端子 (5)接地排 (6)LLVD 空开
|

