产品中心
|
华为TP48600A-HX19C1 室外机柜
产品说明
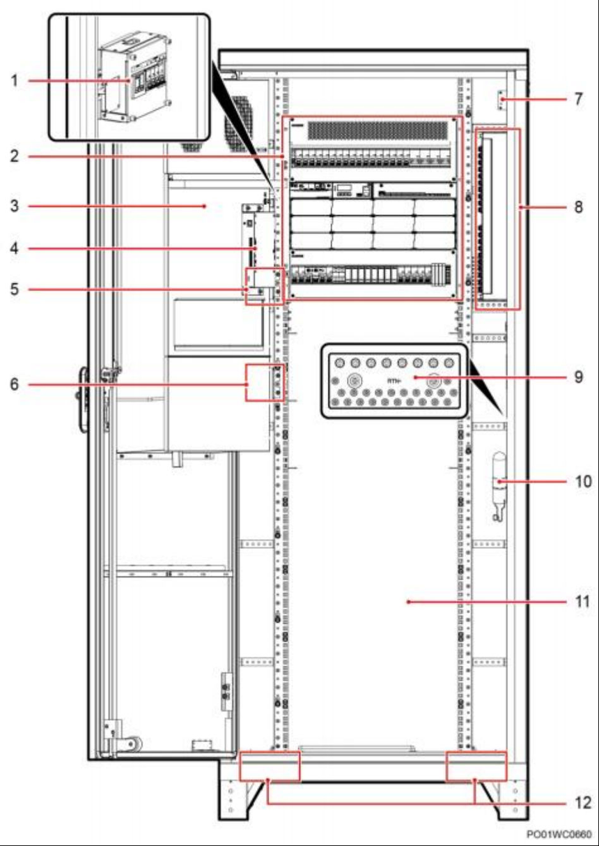
华为TP48600A-HX19C1 室外机柜 图2-1 外观
(1)交流输出盒 (2)电源插框 (3)热交换器 (4)TCUB 控制盒 (5)接地排 (6)温湿度传感器安装空间 (7)门磁传感器 (8)直流配电单元 (9)RTN+母排
|

