产品中心
|
华为TP48200A-HD15A2 通信电源
产品说明
华为TP48200A-HD15A2 通信电源 图2-1 TP48120A-HD15A1 & HD15A2 和 TP48200A-HD15A1 & HD15A2 机柜外观
图2-3 TP48200A-HD15A1 & HD15A2 型号说明
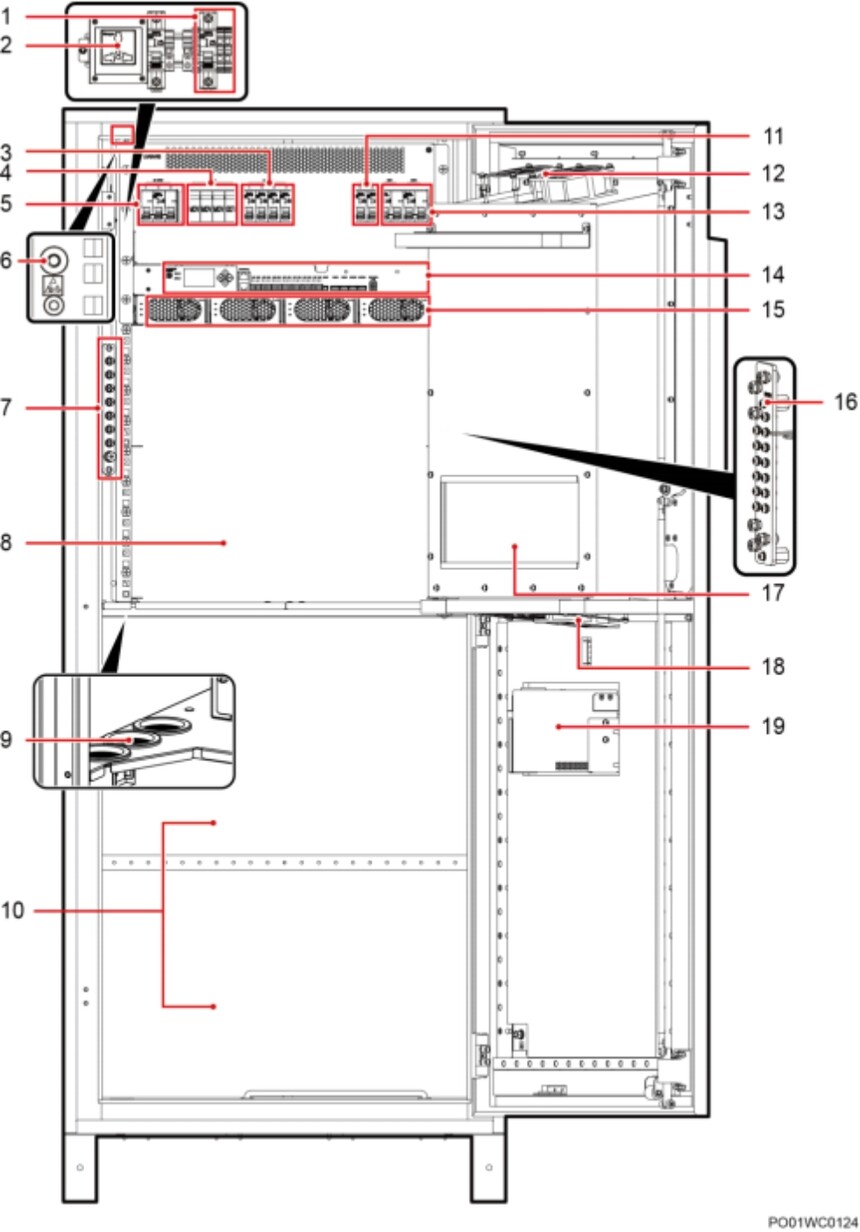
图3-4 TP48200A-HD15A2 内部结构图
(1)交流输出空开及端子 (2)维护插座 (3)次要负载支路空开
(7)接地排 (8)用户设备安装空间 (9)走线孔 (10)电池安装空间 (11)重要负载支路空开 (12)内循环风扇 (13)电池空开 (14)监控单元 (15)整流模块 (16)RTN+母排 (17)热交换芯 (18)外循环风扇 (19)加热器
TP48120A-HD15A1 、TP48120A-HD15A2 、TP48200A-HD15A1 、TP48200A-HD15A2 配电规格如表 3-1所示。 表3-1 配电规格
|
|||||||||||||||||||||||||||||||||||||||||||||||||||||


