基站通信电源机柜

北京友谊世纪进出口贸易有限公司

17358751718

产品中心

详细说明

华为TP48200A-HD15A1 通信电源

暂无价格
产品说明

华为TP48200A-HD15A1 通信电源

2-1  TP48120A-HD15A1 & HD15A2  TP48200A-HD15A1 & HD15A2 机柜外观

 


2-3  TP48200A-HD15A1 & HD15A2 型号说明

 

 

 

2.3 系统特点

l

 

 

交流输入电压范围宽至 85VAC300VAC

l

完善的电池管理功能

l

完善的交、直流防雷设计

l

网络化设计,提供一路 COM 接口、一路 RS485/RS232 接口

l

支持华为网管协议和电总协议,可与华为 NetEco 网管、M2000 网管或第三方网管 通信,组网灵活,可实现远程管理,无人值守

l

支持 LCD 界面显示、按键操作

l

支持整流模块热插拔

l

整流模块功率因数值达 0.99

 


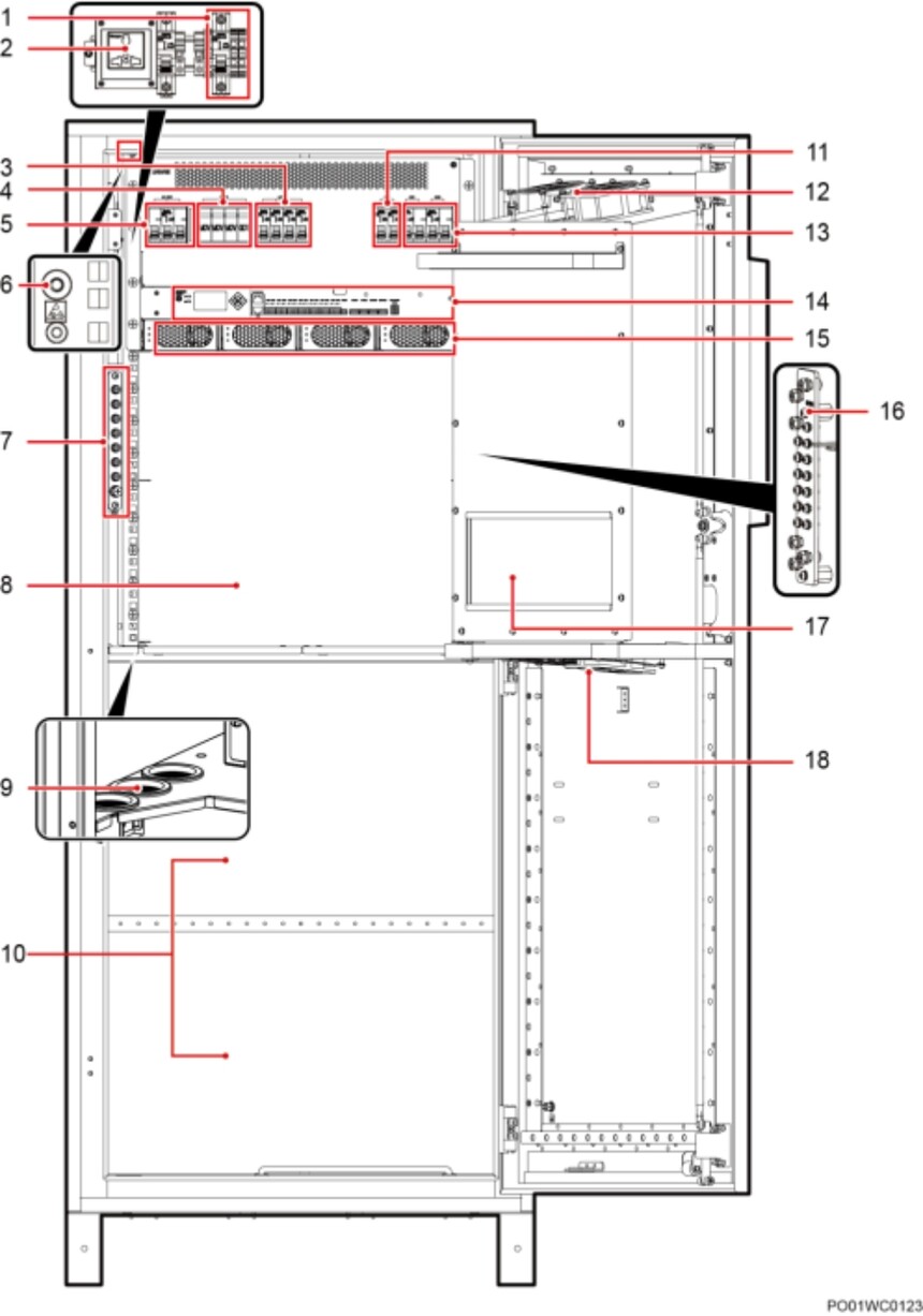
3-3  TP48200A-HD15A1 内部结构图

 

1)交流输出空开及端子   2)维护插座            3)次要负载支路空开

4)交流防雷器           5)交流输入空开        6)静电环

7)接地排               8)用户设备安装空间    9)走线孔

10)电池安装空间        11)重要负载支路空开   12)内循环风扇

13)电池空开            14)监控单元           15)整流模块


 

16RTN+母排           17)热交换芯           18)外循环风扇

 


Copyright @ 2019 . All rights reserved.   备案号

联系方式

24小时联系热线:17358751718

  • 电话直呼

    • 17358751718
    • 13141468178
    • 17332612567
    • 销售前 :
    • 销售后 :
  • 基站通信室内外电源机柜

×
seo seo