产品中心
|
华为PowerCube 1000 ICC710-HA1-C5 室外机柜
产品说明
华为PowerCube 1000 ICC710-HA1-C5 室外机柜 图3-25 ICC710-HA1-C5 的外观
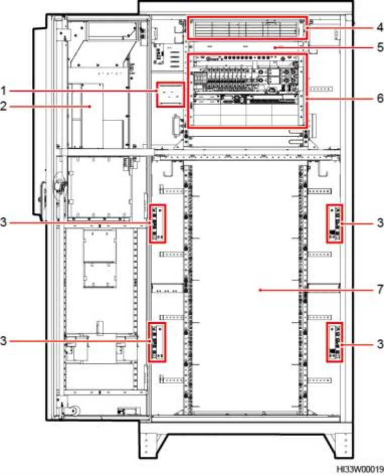
图3-26 ICC710-HA1-C5 的内部结构(正面)
(1)温控供电转接盒 (2)热交换 (3)电池铜排 (4)风机盒 (5)走线面板 (6)DCDU-400AN2
(1)直流空调 (2)接地排
技术指标
表3-15 ICC710-HA1-C5 的技术指标
|


