产品中心
|
华为MTS9600V 通信电源
产品说明
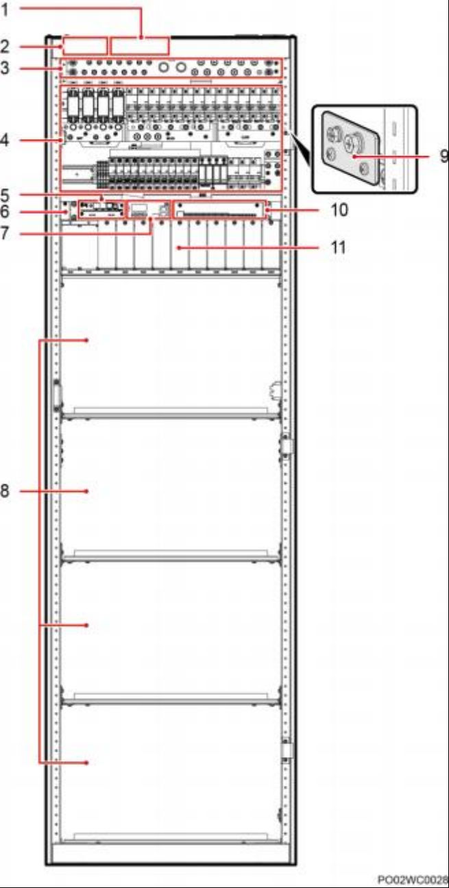
华为MTS9600V 通信电源 图2-7 外观
表2-3 机柜指标
(1)交流检测模块安装空间 (2)电池智能检测模块 (3)RTN+母排 IBOX(CIM01C)安装空间 (4)配电单元 (5)通信扩展模块安装空间 (6)电池强制上电开关 (盖板后) (7)监控模块 SMU02B (8)电池安装空间 (9)机柜接地排
|

