产品中心
|
华为MTS9000A 通信电源 MTS9514A-AM2003
产品说明
华为MTS9000A 通信电源 MTS9514A-AM2003 产品特点如下: ● 高效站点 – 电池休眠 – 温控节能 – 高效整流模块 ● 智能化站点 – IP 、GPRS、带内组网 – 智能温控管理 ● 一体化站点 – 配电模块化配置 图 2-1 外观
表 2-1 机柜说明
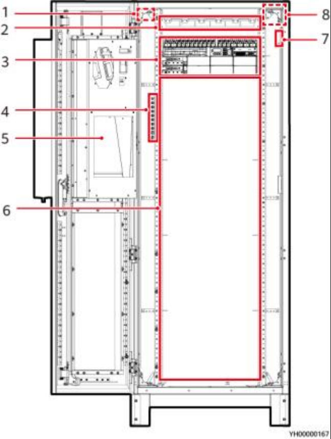
C口 说明 ● B类环境:指不受控环境,即温湿度不受控的房间内或一般的室外环境,包括只有简单遮 蔽,如遮阳棚,湿度偶然会达到100%的情况。 ● C类环境:指海洋上环境,或者污染源附近的陆地室外和只有简单遮蔽的环境。污染源附近 是指距离盐水(如海洋、盐水湖)3.7公里,距离冶炼厂、煤矿、热电厂等重污染源3公里, 距离化工、橡胶、电镀等中等污染源2公里,距离食品、皮革、采暖锅炉等轻污染源1公里。 ● D 类环境:指距离海洋500米内的环境。 图 2-2 内部结构
( 1 )照明灯 (2)走线架 (3)电源插框 (4)接地排 (5)空调PC3000D-2 (6)用户设备/电池安装空间 ( 7 )门磁传感器 (8)烟雾传感器 |

