基站通信电源机柜

北京友谊世纪进出口贸易有限公司

17358751718

产品中心

详细说明

华为iSitePower-A ESC330-D9 室外机柜

暂无价格
产品说明

华为iSitePower-A  ESC330-D9 室外机柜


4-2 ESC330-D9 型号说明

 


4-2 ESC330-D9 型号说明

 

序号

含义

说明

1

产品大类

ESC Energy Storage Cabinet,储能机柜

2

柜体信息

330:机柜尺寸650mm×650mm×1600mm

3

散热方式

D:直通风

4

附属型号

9:序列号

 

 

4-8 ESC330-D9 外观

 


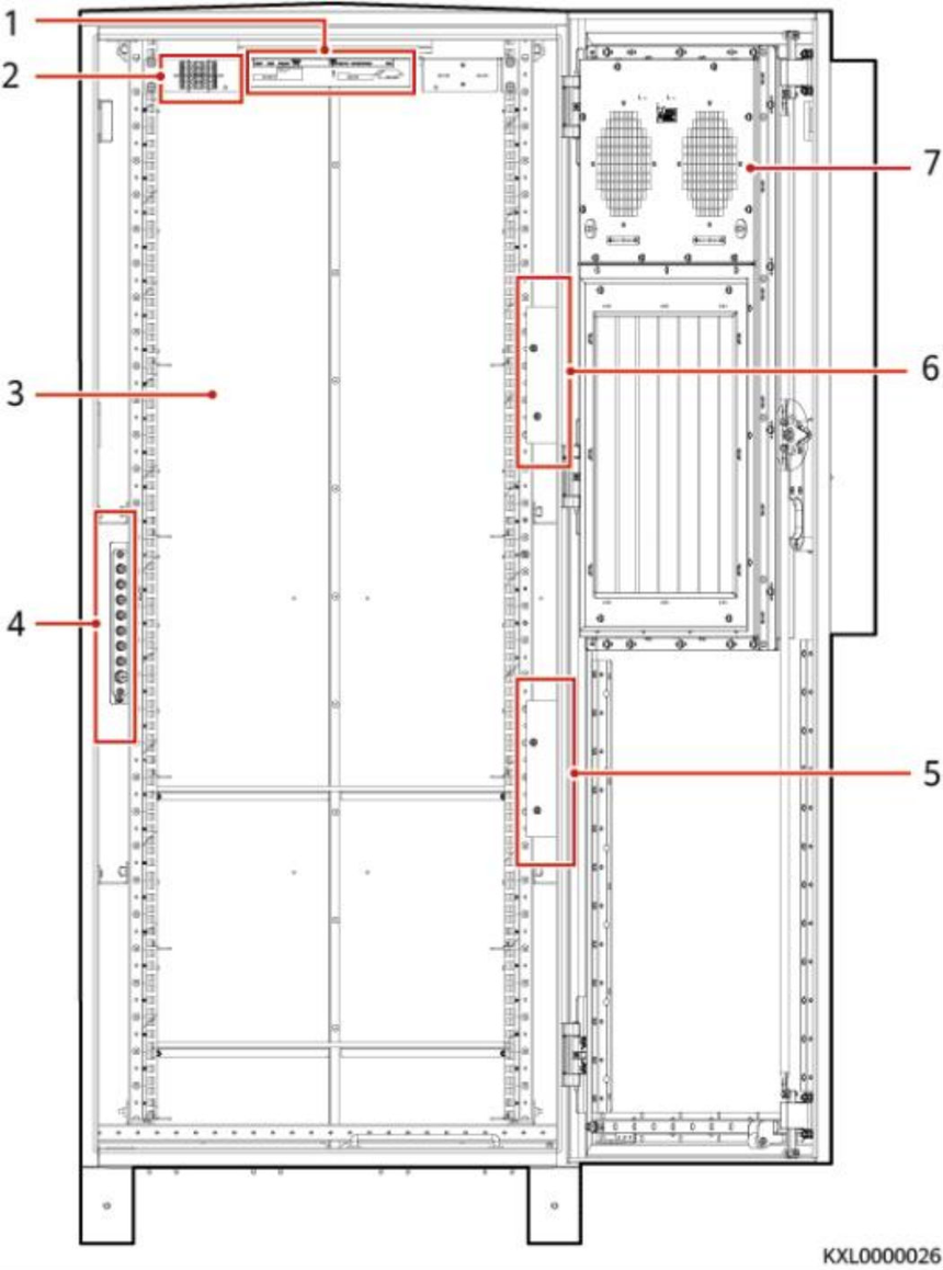
4-9 ESC330-D9 内部结构

 

1 TCUE控制盒                     2)温控设备电源转接端子       3)电池安装空间

4)接地排                              5-48V母排                          6RTN+母排

7 )直通风



Copyright @ 2019 . All rights reserved.   备案号

联系方式

24小时联系热线:17358751718

  • 电话直呼

    • 17358751718
    • 13141468178
    • 17332612567
    • 销售前 :
    • 销售后 :
  • 基站通信室内外电源机柜

×
seo seo