产品中心
|
华为TP481000B- N20B1 通信电源
产品说明
华为TP481000B- N20B1 通信电源 图2-1 机柜外观
图2-4 TP481000B-N20B1 型号说明
l 支持 WEB 界面操作 l 支持用户界面多语言功能,如英语、中文、意大利语、法语、西班牙语、葡萄牙 语、俄语、德语、土耳其语等 l 支持整流模块、监控模块热插拔 l 整流模块功率因数值达 0.99 l 高效整流模块效率高达 95%,标效整流模块效率高达 91% l 根据负载功率的大小,自动休眠一个或多个整流模块,节省能耗;支持高标效模 块混插,节省投资 l 支持 4 用户共享供电,可对 4 用户的直流用电进行独立电量计量 l 支持分用户控制负载下电,可选时间模式(时长可调)或电压模式(电压值可 调),分用户上下电参数独立可调
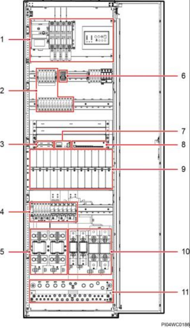
图3-3 TP481000B-N20B1 内部结构
(1)交流切换开关 ATS (2)交流输出空开 (3)通信扩展模块安装空间 (4)直流输出空开 (5)电池熔丝 (6)交流输出 N 端子 (7)监控单元 (8)用户接口模块 (9)整流模块安装空间
|


