产品中心
|
华为TP48400A-HT15B1, HT15B2 通信电源
产品说明
华为TP48400A-HT15B1, HT15B2 通信电源
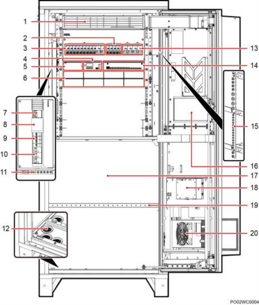
(1)风机盒 (2)重要负载支路(BLVD)空 (3)次要负载支路(LLVD) 开 空开 (4)监控模块 (5)电池强制上电开关(在盖板 (6)整流模块安装空间 后面) (7)交流输出空 (8)N 接线端子 (9)交流防雷器 开 (10)交流输入 (11)接地排 (12)走线孔 空开 (13)电池支路 (14)用户接口模块 (15)RTN+母排 空开 (16)热交换器 (17)电池安装空间 (18)TCUA 控制盒
|
