基站通信电源机柜

北京友谊世纪进出口贸易有限公司

17358751718

产品中心

详细说明

华为TP48400A-HD15B1 通信电源

暂无价格
产品说明

华为TP48400A-HD15B1 通信电源

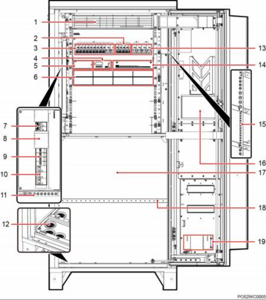
3-1  TP48400A-HD15B1 内部结构图

 

 

1)风机盒

2)重要负载支路(BLVD)空 

3)次要负载支路

LLVD)空开

4)监控模块

5)电池强制上电开关(在盖板 后面)

6)整流模块安装空间

7)交流输出空开

8N 接线端子

9)交流防雷器

10)交流输入空 

11)接地排

12)走线孔

13)电池支路空 

14)用户接口模块

15RTN+母排

16)热交换器

17)电池安装空间

18)电池架

19)加热器安装 空间



Copyright @ 2019 . All rights reserved.   备案号

联系方式

24小时联系热线:17358751718

  • 电话直呼

    • 17358751718
    • 13141468178
    • 17332612567
    • 销售前 :
    • 销售后 :
  • 基站通信室内外电源机柜

×
seo seo