产品中心
|
华为TBC300A-DCA3 通信电源
产品说明
华为TBC300A-DCA3 通信电源
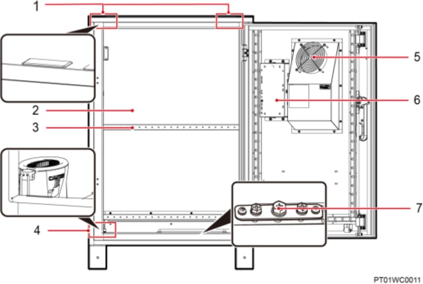
图2-5 TBC300A-DCA3 和 TBC300A-DCA5 型号说明
(1)上走线孔 (2)电池安装空间 (3)电池架 (4)走线袋 (5)直通风风扇 (6)TCUA 控制盒
|


