产品中心
|
华为TP48200A-HT19C1 通信电源
产品说明
华为TP48200A-HT19C1 通信电源 图2-1 机柜外观图
图2-3 TP48200A-HT19C1 和 TP48200A-HT19C2 的型号说明
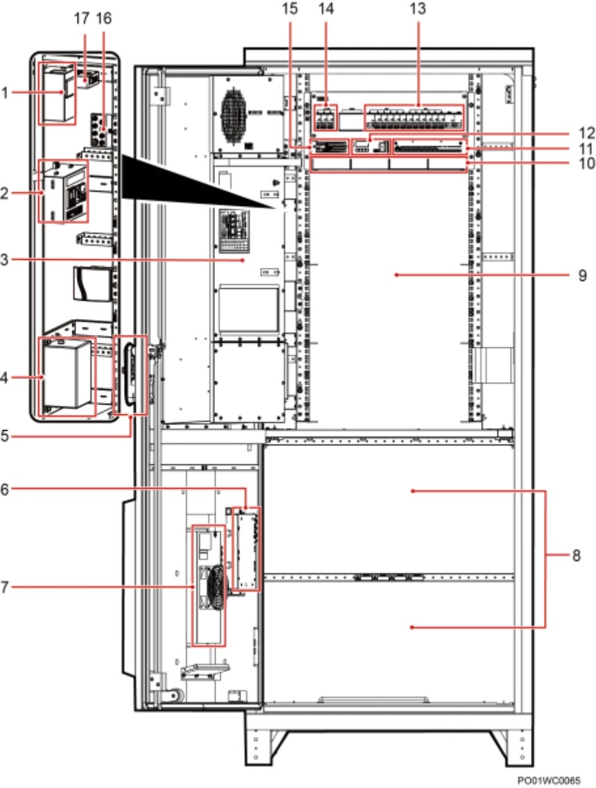
图3-3 TP48200A-HT19C1 内部结构
(1)智能电表(选配) (2)维护插座(选配) (3)HXC70S 热交换器 (4)蓝牙控制器(选配) (5)电子门锁(选配) (6)TCUA 控制盒 (7)TEC 模块 (8)电池安装空间 (9)用户设备安装空间 (10)整流模块安装空间 (11)用户接口模块 (12)监控模块 (13)直流配电单元 (14)交流输入空开 (15)电池强制上电开关
|


