产品中心
|
华为TP48200A-HD15A1 通信电源
产品说明
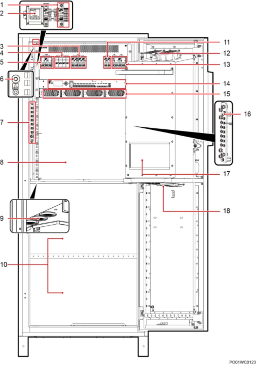
华为TP48200A-HD15A1 通信电源 图2-1 TP48120A-HD15A1 & HD15A2 和 TP48200A-HD15A1 & HD15A2 机柜外观
图2-3 TP48200A-HD15A1 & HD15A2 型号说明
(1)交流输出空开及端子 (2)维护插座 (3)次要负载支路空开 (4)交流防雷器 (5)交流输入空开 (6)静电环 (7)接地排 (8)用户设备安装空间 (9)走线孔 (10)电池安装空间 (11)重要负载支路空开 (12)内循环风扇
(16)RTN+母排 (17)热交换芯 (18)外循环风扇
|


