产品中心
|
华为TP48600T-N20A6 通信电源
产品说明
华为TP48600T-N20A6 通信电源 图2-1 TP48600T-N20A6 的机柜外观
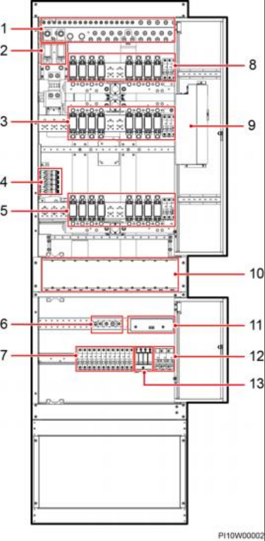
图3-1 内部结构
(1)RTN+母排 (2)电池熔丝 (3)用户 2 直流输出空开和 熔丝 (4)用户 4 直流输出空开 (5)用户 1 直流输出 (6)机柜接地排 空开和熔丝 (7)整流模块空开 (8)用户 3 直流输出 (9)SMU06C2 空开和熔丝 (10)整流模块安装空间 (11)N 接线排 (12)交流输入空开 (13)交流防雷器 |

