产品中心
|
华为TP48600B-N16A5 通信电源
产品说明
华为TP48600B-N16A5 通信电源
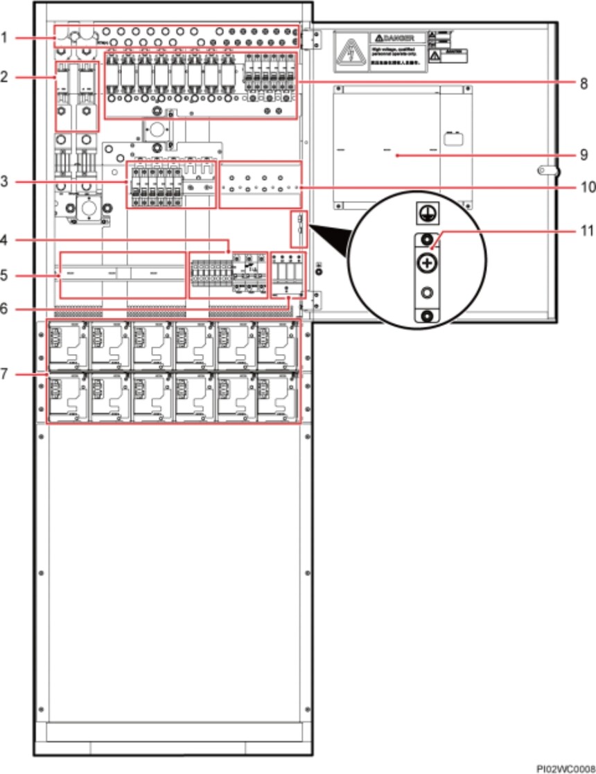
图2-4 TP48600B-N16A5 的型号说明
|


