产品中心
|
华为TP48400B-N20B3 通信电源
产品说明
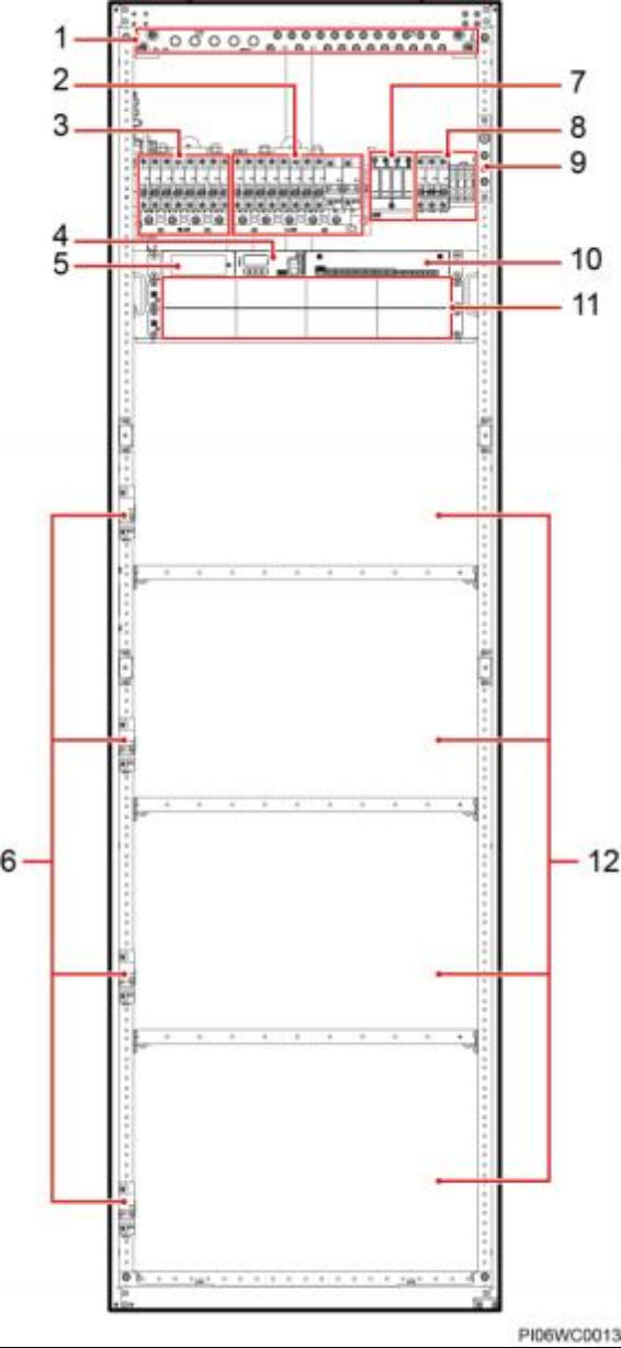
华为TP48400B-N20B3 通信电源 图2-1 机柜外观图
源
l 支持华为网管协议和电总协议,可与华为 NetEco 网管、M2000 网管或第三方网管 通信,组网灵活,可实现远程管理,无人值守 l 支持 LCD 界面显示、按键操作 l 支持 WEB 界面操作 l 支持用户界面多语言功能,如英语、中文、西班牙语、葡萄牙语、意大利语、法 语、俄语等 l 支持整流模块、监控模块、太阳能模块和二次电源模块热插拔 l 整流模块功率因数值达 0.99 l 高效整流模块效率最高达到 96%,标效整流模块效率最高达到 94% l 太阳能模块效率最高达到 98.5% l 二次电源模块效率最高达到 92%
图3-4 TP48400B-N20B3 内部结构
(1)RTN+母排 (2)次要负载下电支路 (3)重要负载下电支路 (LLVD) (BLVD)
源
(7)交流防雷器 (8)交流输入空开及端子 (9)机柜接地排 (10)用户接口模块 (11)整流模块或太阳能模块 (12)电池安装空间 UIM02C 安装空间 |

